In Wendeburg-Harvesse finden Sie dieses massiv gebaute Zweifamilienhaus, das Ihnen vielfältige Nutzungsmöglichkeiten bietet. Die Immobilie eignet sich ideal für eine Familie, die mehr generationenübergreifend und dennoch mit eigener Privatsphäre wohnen möchte. Ebenso ist sie als attraktives Anlageobjekt oder als großzügiges Einfamilienhaus nutzbar.
Alternativ lässt sich Arbeiten und Wohnen unter einem Dach optimal miteinander verbinden.
Auf rund 220 m² Wohnfläche, verteilt auf zwei Etagen, erwarten Sie acht Zimmer sowie drei Bäder, die vielfältige Wohn- und Nutzungsmöglichkeiten bieten. Ergänzend steht Ihnen ein ausgebauter Dachboden zur Verfügung, der zusätzlichen Raum für Wohnen, Arbeiten oder Hobbys schafft.
Die Immobilie wurde im Jahr 1958 auf einem ca. 1.000 m² großen Eigentumsgrundstück errichtet und besticht durch ihre unverbaubare Feldrandlage mit Blick ins Grüne.
Erdgeschoss:
Ein großzügiger Flurbereich empfängt Sie und verbindet alle Räume miteinander.
Auf dieser Ebene befinden sich drei Schlafzimmer, das Badezimmer mit Badewanne sowie das große Wohn- und Esszimmer, das über einen separaten Zugang zur hellen, angrenzenden Küche verfügt – ideal für komfortables Kochen und geselliges Beisammensein.
Der Garten dieser Immobilie besticht durch seine Größe, seinen alten Baumbestand und die nicht einsehbare Lage, die Privatsphäre garantiert. Ein Party-Pavillon lädt zu geselligen Stunden ein und bietet gleichzeitig Stauraum für Gartengeräte oder Möbel. So verbindet der Außenbereich Gemütlichkeit, Funktionalität und naturnahe Idylle.
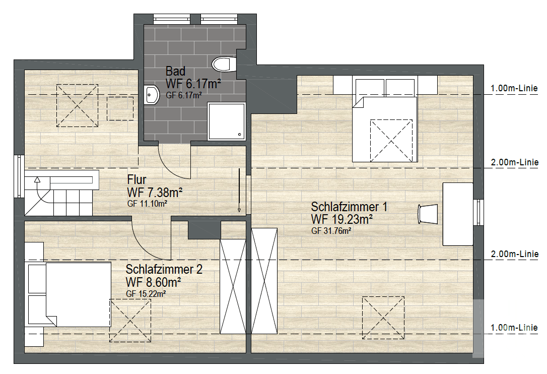
Obergeschoss:
Die Wohneinheit verfügt über zwei Schlafzimmer, ein kleines Büro sowie die geschlossene Küche mit Einbauküche. Das Badezimmer befindet sich noch im Rohbau und kann nach Ihren Vorstellungen gestaltet werden.
Das helle Wohn- und Esszimmer überzeugt durch seine Großzügigkeit und bietet Zugang zum Balkon, von dem Sie einen herrlichen Blick über den Garten genießen.
Über eine Wendeltreppe erreichen Sie das ausgebaute Dachgeschoss, das über zwei weitere Schlafzimmer und ein Badezimmer mit Dusche verfügt – ideal für Gäste, Teenager oder als Rückzugsbereich für die Familie.
Der vollständig ausgebaute Kellerbereich bietet unterschiedlicher Räume, die nicht nur als Abstellräume, sondern auch für Hobbys genutzt werden können.
Zusätzlich bietet ein Doppel-Carport geschützte Stellplätze für Ihre Fahrzeuge. Weitere PKW-Stellplätze auf dem Grundstück sorgen dafür, dass genügend Platz für Familie und Gäste vorhanden ist.
















































